Všechny byty stavíme a vybavujeme s maximálním důrazem na chytré využití celého prostoru.
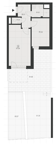
Dispozice 2+kk
Obytná plocha 37.6 m2
Nadzemní podlaží 1.
Koupelna + WC 4.4 m2
Obývací pokoj + KK 22.4
Ložnice 8.8 m2
Terasa/Balkon 18.9 m2
Zahrada 39.9 m2
Stavvolný
Cena6 610 531 Kč
Další byty na tomto patře
Co by vás také mohlo zajímat
Dispozice
Velikost
Terasa
Zahrada
Cena
Stav
Vysoký standard je samozřejmostí
Dejte nám vědět, s čím vám můžeme pomoct
Osobně s vámi projdeme každý detail

