Všechny byty stavíme a vybavujeme s maximálním důrazem na chytré využití celého prostoru.

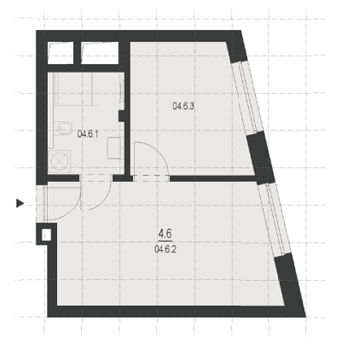
Obytná plocha 37.3 m2
Dispozice 2+kk
Nadzemní podlaží 4.
Koupelna + WC 5.3 m2
Obývací pokoj + KK 19.6
Pokoj 10.7 m2
Stavvolný
Cena6 292 594 Kč
Další byty na tomto patře
Co by vás také mohlo zajímat
Dispozice
Velikost
Terasa
Zahrada
Cena
Stav
Vysoký standard je samozřejmostí





Dejte nám vědět, s čím vám můžeme pomoct
Osobně s vámi projdeme každý detail