Všechny byty stavíme a vybavujeme s maximálním důrazem na chytré využití celého prostoru.
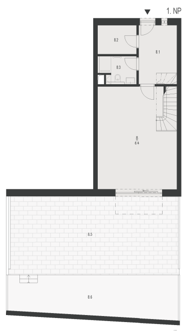
Obytná plocha 119.3 m2
Dispozice 4+kk
Nadzemní podlaží 1.+2.
Předsíň 10.5 m2
Komora 5.1 m2
Koupelna + WC 4.2 m2
Obývací pokoj + KK 37.7
Zahrada 32.2 m2
Terasa/Balkon 60.7 m2
Stavvolný
Cena16 663 925 Kč
Vysoký standard je samozřejmostí
Dejte nám vědět, s čím vám můžeme pomoct
Osobně s vámi projdeme každý detail

