Všechny byty stavíme a vybavujeme s maximálním důrazem na chytré využití celého prostoru.
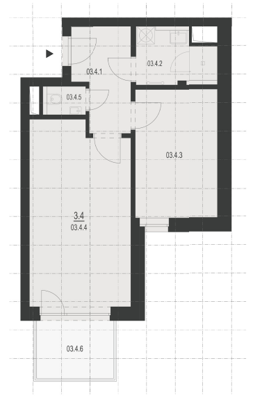
Obytná plocha 51.1 m2
Dispozice 2+kk
Nadzemní podlaží 3.
Předsíň 6.7 m2
Koupelna 4.8 m2
Ložnice 13.1 m2
Obývací pokoj + KK 22.3
WC 1.4 m2
Terasa/Balkon 5.5 m2
Stavprodáno
Cena7 081 770 Kč
Další byty na tomto patře
Co by vás také mohlo zajímat
Dispozice
Velikost
Terasa
Zahrada
Cena
Stav
Vysoký standard je samozřejmostí
Dejte nám vědět, s čím vám můžeme pomoct
Osobně s vámi projdeme každý detail

